6 locali in vendita

Palermo, Via emanuele notarbartolo - Notarbartolo
€ 440.000
6 locali 6 locali
170 Mq 170 Mq
2 bagni 2 bagni

6 locali in vendita

Palermo, Via emanuele notarbartolo - Notarbartolo

Descrizione annuncio

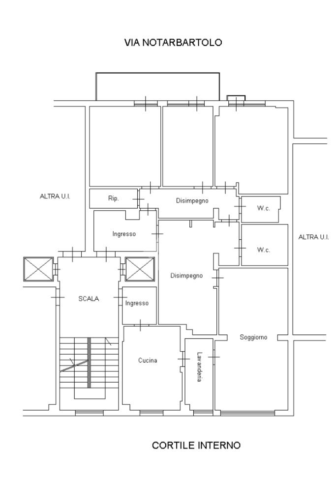
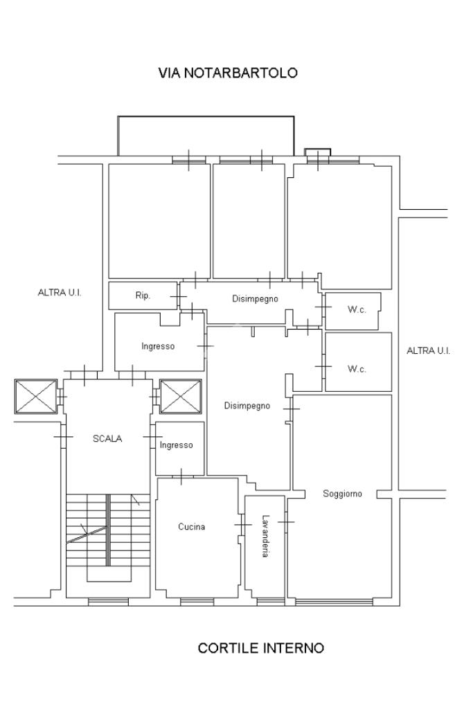
Via Emanuele Notarbartolo, ad angolo con Via Lo Jacono, in zona centrale e altamente servita, proponiamo in vendita un ampio appartamento in posizione strategica, a pochi passi dalla stazione Notarbartolo e dalla linea tranviaria. La vicinanza all’Istituto Gonzaga rende l’immobile ideale per famiglie.

L’appartamento è situato al terzo piano, sopra due ammezzati, di un elegante stabile degli anni ’70, dotato di servizio di portineria e impianto di videosorveglianza, a garanzia di comfort e sicurezza. Lo stabile è inoltre servito da doppi ascensori per ciascuna scala.

L'esavani che proponiamo si distingue per la presenza di un comodo doppio ingresso, che garantisce funzionalità e privacy. Il primo ingresso introduce alla zona notte, composta da tre luminose camere da letto con balconi ed esposizione su via Notarbartolo, e a un ampio soggiorno di circa tre vani con gradevole esposizione interna. Il secondo ingresso consente l’accesso diretto alla cucina, rendendo gli ambienti pratici e ben organizzati. Completano la proprietà due servizi, una lavanderia e un utile ripostiglio.

L’abitazione si presenta in buono stato abitativo, con una distribuzione degli spazi versatili, capace di adattarsi a diverse esigenze. Gli ambienti sono arricchiti da armadi a muro nel corridoio, che ottimizzano gli spazi, e da finiture che garantiscono comfort e sicurezza, come il riscaldamento condominiale, gli infissi in legno con doppio vetro e le porte blindate. Le pompe di calore assicurano un clima ideale in ogni stagione. La cucina, inclusa nella vendita, rappresenta un valore aggiunto per chi desidera una soluzione pronta da abitare.

Se desideri maggiori dettagli o informazioni su come organizzare una visita, non esitare a contattarci!

PER QUALSIASI INFORMAZIONE POTETE CHIAMARE ALLO 091-6250300 oppure INVIARE UN'EMAIL A PACC7 UN NOSTRO AGENTE SARA' PRONTO A RISPONDERE ALLE VOSTRE DOMANDE CON PROFESSIONALITA' E CORTESIA.

Mostra tutto

Nelle vicinanze

Trasporto pubblico Trasporto pubblico
Palermo Notarbartolo
Palermo Notarbartolo
350 m
Fiera
Fiera
1,1 Km
Notarbartolo
Notarbartolo
290 m
Respighi/Piazza Ziino
Respighi/Piazza Ziino
610 m
Notarbartolo - Morello
Notarbartolo - Morello
90 m
Ricariche auto elettriche Ricariche auto elettriche
EnelX EVA+ Negozio Enel di Palermo
780 m
CONAD SUPERSTORE Palermo Mandalà | EnelX
1,9 Km
ALD Costa CAR SERVICE PALERMO | ENELX
2,5 Km
Scuole Scuole
Scuola Media Statale Alberico Gentili
160 m
Istituto Gonzaga
270 m
Giuseppe Pitrè;Generale Di Maria
330 m
Ancelle
470 m
Liceo Scientifico Albert Einstein (ex III Liceo)
570 m
Farmacia Farmacia
farmacia D'Alessandro
190 m
Dott. Antonino D'Alessandro
200 m
Farmacia
240 m
Farmacia Lo Casto
360 m
Farmacia San Michele
570 m
Ospedali Ospedali
Radial - Diagnostica per Immagini
750 m
Centro Traumatologico Ortopedico
2,1 Km
Ospedali Villa Sofia Cervello
2,6 Km
Ospedale dei bambini "Giovanni Di Cristina"
2,8 Km
Ospedale Enrico Albanese
2,9 Km
Supermercati Supermercati
Prezzemolo & Vitale
70 m
Fresco Più
720 m
GS
870 m
Sigma Gargano
1,1 Km
mercato ortofrutticolo
1,2 Km
Negozi Negozi
Negozi
260 m
Bio supermarket Prezzemolo&Vitale
590 m
Pasticceria Panificio Badagliaca Eleonora
660 m
Panificio Puccio
700 m
Dieffemedicali - Medical Store
730 m
Bar Bar
Bar
260 m
Il Marchese
390 m
Querida
710 m
Bar Lux
760 m
spinnato
860 m
Ristoranti Ristoranti
Naif
270 m
Ristorante 131
500 m
L'angolo del gusto
560 m
Cotto a Legna
580 m
bioesserì
620 m
Mostra tutto

Caratteristiche

Rif.:
61174095
Piano:
3 di 8 con ascensore (Piano medio)
Balconi:
1
Camere da letto:
3
Arredamento:
Assente
Condizionamento:
Autonomo
Mostra tutto
Prezzo Prezzo
€ 440.000
Rata mutuo Rata mutuo
€ 2.074 / mese
Spese annue Spese annue
€ 2.160
Proponi il tuo prezzoProponi il tuo prezzo
Immobile valutato con T·Valuta

Classe Energetica

C
C
C
C
C
C
C
C
C
EP globale non rinnovabile:
41.67 kW h/m² anno
EP globale rinnovabile:
41.67 kW h/m² anno
EP invernale del fabbricato:
EP estiva del fabbricato:
Anno di costruzione:
1970
Riscaldamento:
Centralizzato
Tipo impianto:
A radiatori
Tipo alimentazione:
Metano

Ti interessa visionare l'immobile?

Fissa un appuntamento  Fissa un appuntamento

Richiedi informazioni

Clicca su Leggi per aprire l'informativa
* Questi campi sono obbligatori

Calcola il tuo mutuo

Semplice e senza impegno
Anticipo

( % )
Mutuo

( % )

pochi semplici passi

inserisci i tuoi dati
Questionario completato
Grazie per aver richiesto un appuntamento senza impegno con un nostro Consulente del Credito e Assicurativo.

Hai inserito correttamente tutti i dati necessari e a breve riceverai una e-mail con un link da convalidare per inviare i tuoi dati.
Affiliato
Studio Terrasanta Srl
Via Terrasanta, 41 90141 Palermo (PA)
Via Terrasanta, 41 90141 Palermo (PA)
Zona: Terrasanta-Notarbartolo-Malaspina-Pacinotti-Galilei
Mostra su mappa
Orari: Lunedì - Venerdì 09:00/13:00 e dalle 15:30/19:30 Sabato Mattina 09:00/13:00
Affiliato
Studio Terrasanta Srl
Via Terrasanta, 41 90141 Palermo (PA)

2026 Tecnocasa Franchising S.p.A. - P. IVA 08365160152 - Via Monte Bianco 60/A 20089 Rozzano (MI). Ogni agenzia ha un proprio titolare ed è autonoma. Privacy policy | Policy utilizzo | Cookie policy